Grad Petrinja jučer je potpisao Ugovor o dodjeli bespovratnih sredstava za provedbu projekta pod nazivom „Pilot projekt razvoja zelene infrastrukture i/ili kružnog gospodarenja prostorom i zgradama – Parkovi susjedstva – javne površine na području Grada Petrinje“.
Ugovor je, u ime gradonačelnice, potpisao zamjenik gradonačelnice Ivan Prskalo, a projekt se financira u okviru Nacionalnog plana oporavka i otpornosti 2021. – 2026. Gradu su dodijeljena sredstva u iznosu od 1.013.100,18 eura što je najviši mogući iznos sufinanciranja ukupno utvrđene vrijednosti prihvatljivih.

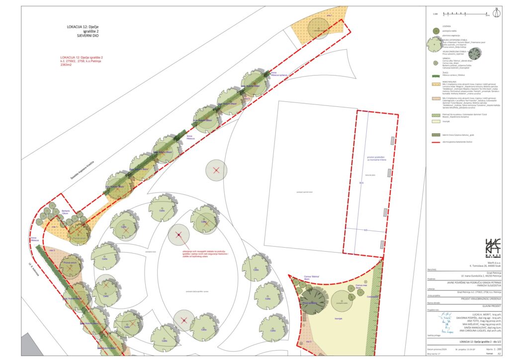
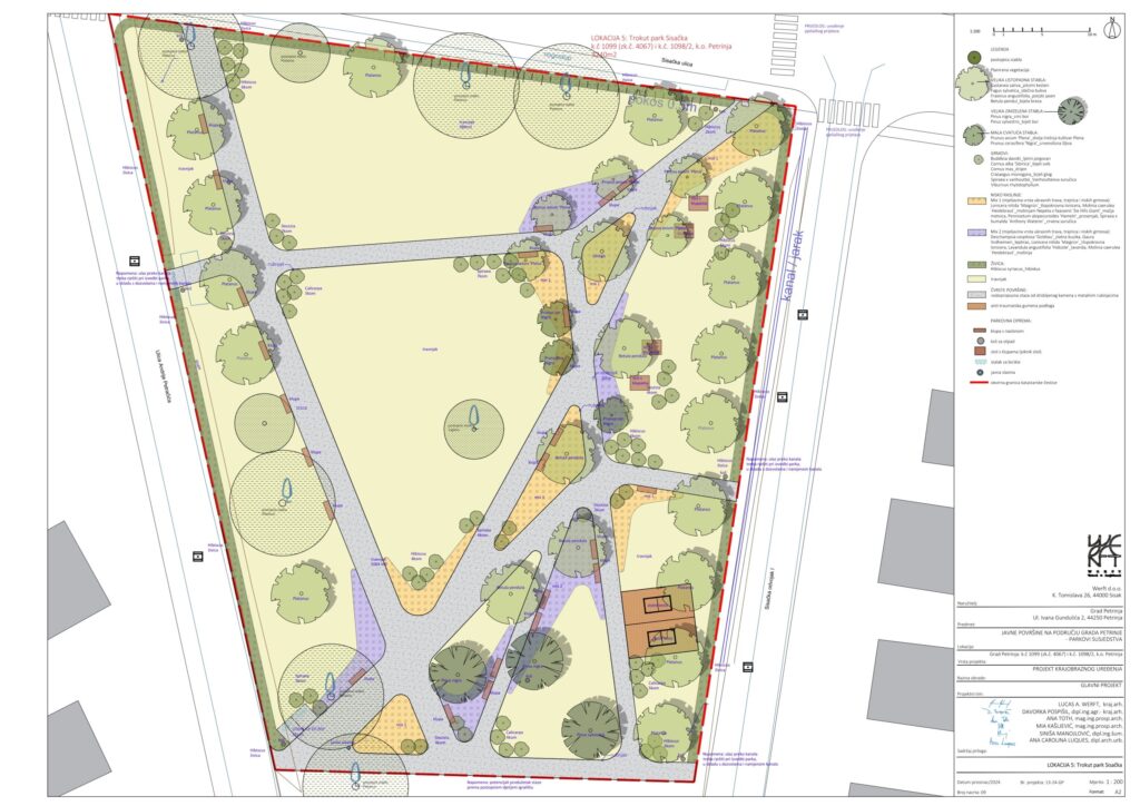
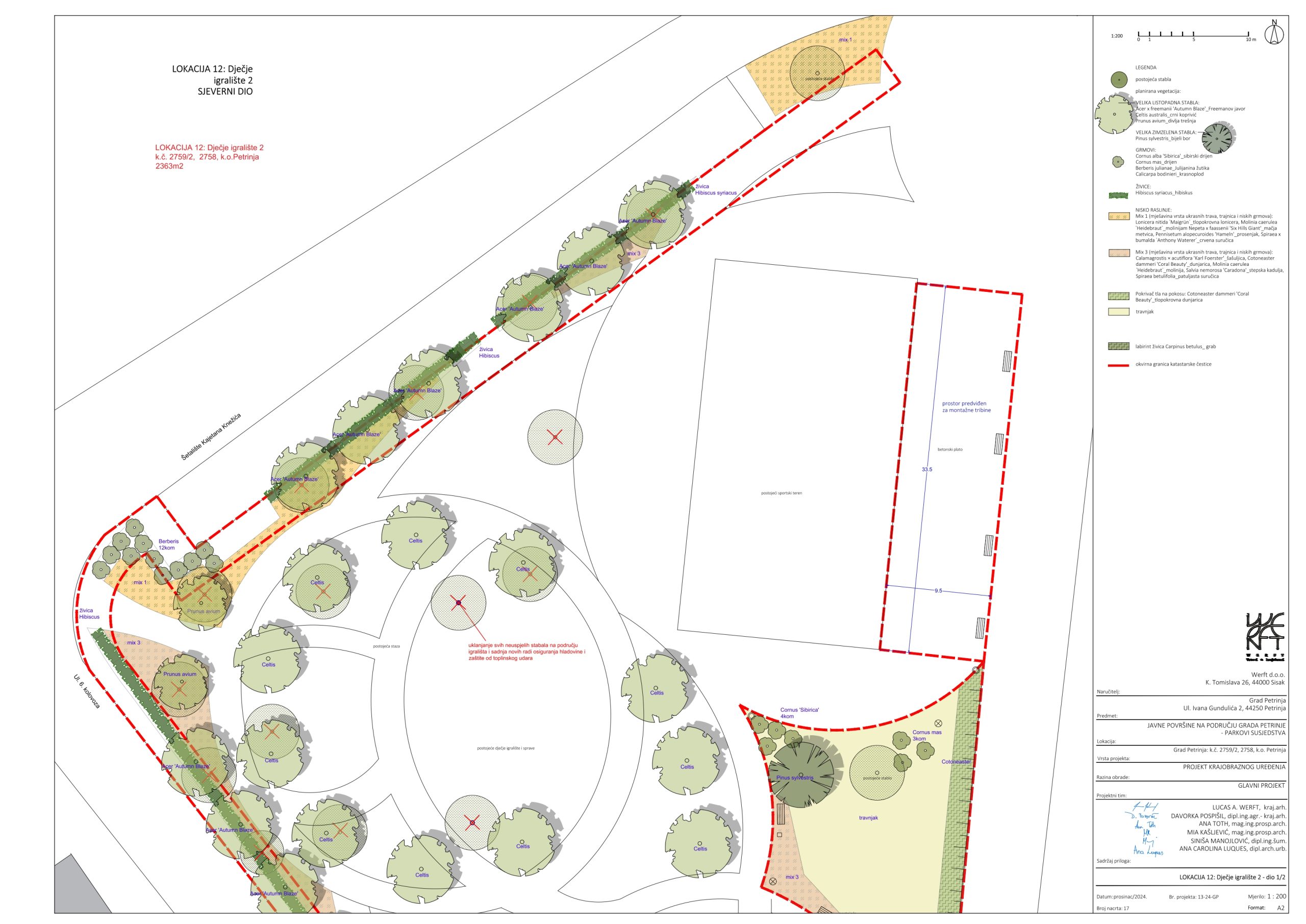
Ovaj projekt predstavlja važan iskorak u stvaranju ugodnijeg, zdravijeg i kvalitetnijeg gradskog okruženja za sve građane Petrinje. Radi se o sveobuhvatnoj intervenciji na 14 lokacija diljem grada, ukupne površine preko 27.000 četvornih metara.
Na tim će se lokacijama saditi 286 stabala, od čega su većina autohtone vrste, te više od 430 grmova, a posebno će se voditi računa o vrstama pogodnima za oprašivače. Predviđena je i izgradnja zelene fasade, kao i uređenje vanjske učionice kod Pučkog otvorenog učilišta, a na prostoru Sajmišta planira se formiranje urbane zelene mreže koja će povezati zelene točke i stvoriti nova mjesta za druženje, rekreaciju i boravak na otvorenom.
Projekt doprinosi ne samo vizualnom uređenju grada, već i stvaranju hladovine, smanjenju toplinskih otoka, poboljšanju kvalitete zraka i podizanju svijesti o važnosti očuvanja prirode. Provedba projekta započela je krajem 2024. godine, a završetak se planira do 30. lipnja 2026. godine, a njime će se revitalizirati prostori koji su do sada bili zapušteni ili slabo korišteni, s ciljem da postanu vrijedni resursi zajednice – mjesta okupljanja, odmora i interakcije. Poseban naglasak stavlja se na uključivanje zelenih elemenata u svakodnevni život Petrinjaca.
Grad Petrinja ovim projektom započinje novu fazu svoje urbane obnove, u kojoj će zelene površine, održivi razvoj i dobrobit građana biti u središtu svih budućih aktivnosti.
„Ovaj projekt predstavlja važan korak u obnovi Petrinje, ne samo kroz fizičko uređenje prostora, nego i kroz stvaranje ljepšeg, zelenijeg i zdravijeg grada za naše građane. Naši sugrađani zaslužuju okruženje koje potiče kvalitetu života, zajedništvo i održivost. Ovo je tek početak stvaranja Petrinje kakvu svi želimo – moderne, ugodne i otporne na izazove budućnosti“, istaknula je gradonačelnica Magdalena Komes.



















































